<< retour

licence en architecture / 2018-2021

licence 1

en première année nous avons fait de nombreux exercices mais celui-ci est celui qui a été le plus formateur pour moi, on devait concevoir une maison en surélévation sur le toît d'un immeuble de bureaux. il fallait alors réfléchir au parcours mais aussi aux vues et à l'aménagement des différents espaces.

rez-de-toiture r+1

licence 2

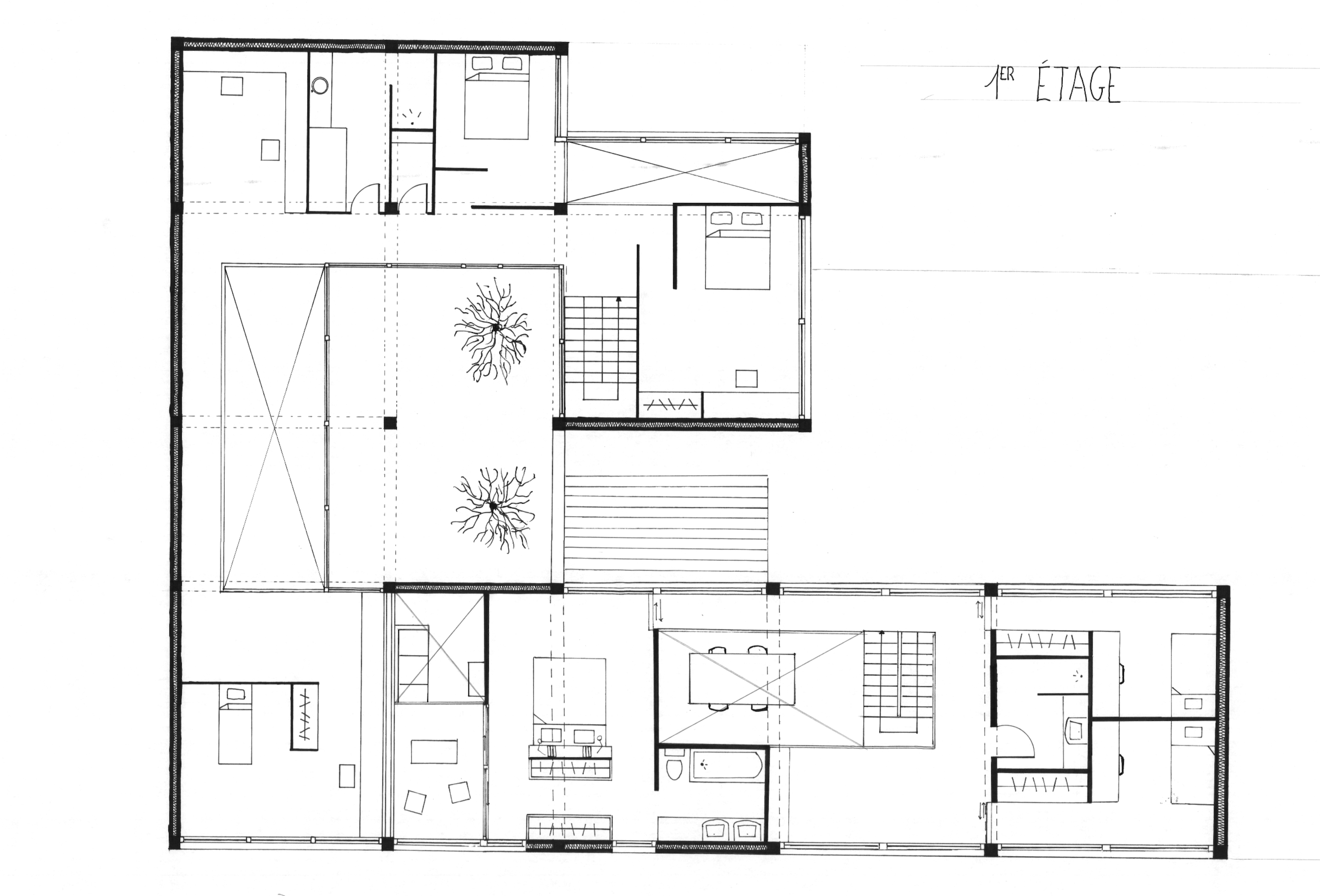
en deuxième année, nous avions plutôt des sujets sur le logement. ce projet montre ainsi un immeuble de logement collectif à l'alignement dans une parcelle parisienne, nous permettant de travailler également sur le fond de la parcelle.

planche de présentation du projet maquette de site coupe longitudinale et plans plans des étages courants

licence 3

en troisième année, on passe de l'échelle architecturale à l'échelle urbaine. les projets d'architecture prévoient donc la réflexion sur l'implantation urbaine. sur cette parcelle trapézoïdale, le groupe de quatre que nous formions a proposé une implantation sur le pourtour de la parcelle avec des plots en coeur d'ilôt. nous avons recrée une voie piétonne et aménagé un parc le long du canal de l'ourcq. individuellement, nous devions concevoir une barre et un plot de logements et montrer un appartement-type.

plan masse plan d'étage courant maquette appartement type plan appartement type

le dernier semestre de la licence nous pousse vraiment sur l'échelle urbaine voire territoriale. le sujet du devenir du périphérique avec paris +2°C, nous a incité à imaginer l'utopie avec un périphérique productif pratiqué par un tram-frêt pour alimenter paris.

carte d'analyse axonométrie du projet plan de la gare productive