<< retour

master en architecture / 2021-2025

master 1

le premier projet que j'ai eu à faire en erasmus à l'etsam à Madrid était celui de bains thermaux dans la ville de San Sebastian. la parcelle de forme carrée et implantée entre les rochers et la plage permettait ce genre de programme. il fallait donc à la fois habiter le volume cubique dont nous disposions mais aussi proposer une oeuvre sculpturale habitable. c'était assez challengeant puisque ce n'est pas une manière habituelle de faire du projet à l'ensaplv. j'ai donc imaginé des bassins installés entre les poutres de ce bâtiment moderniste dont la structure est tenue par les deux noyaux d'escaliers.

plan de situation plan du rdc plan du r+1 coupe transversale maquette 1-200 vue intérieure

au deuxième semestre de mon erasmus, j'ai choisi un enseignement de projet autour de la réhabilitation d'une ancienne usine à tabac du XVIIIe siècle. autrefois aux portes de la ville, l'usine a été engloutie par le tissu urbain dense de madrid et fait désormais partie du quartier de Lavapies. après une analyse du quartier et du bâtiment, j'ai pu concevoir des interventions pour la réhabilitation de l'ilôt :
- la création d'une nouvelle rue, avec un espace élargi permettant de voir la cour principale arborée de la tabacalera,
- la surélévation du bâtiment en anneau autour des deux cours couvertes pour y installer des ateliers d'artistes et des logements temporaires,
- un pavillon d'entrée pour le musée et
- un marché couvert permanent sur le fond de la parcelle.

carte d'analyse axonométrie du projet plan de la gare productive carte d'analyse carte d'analyse carte d'analyse carte d'analyse

master 2

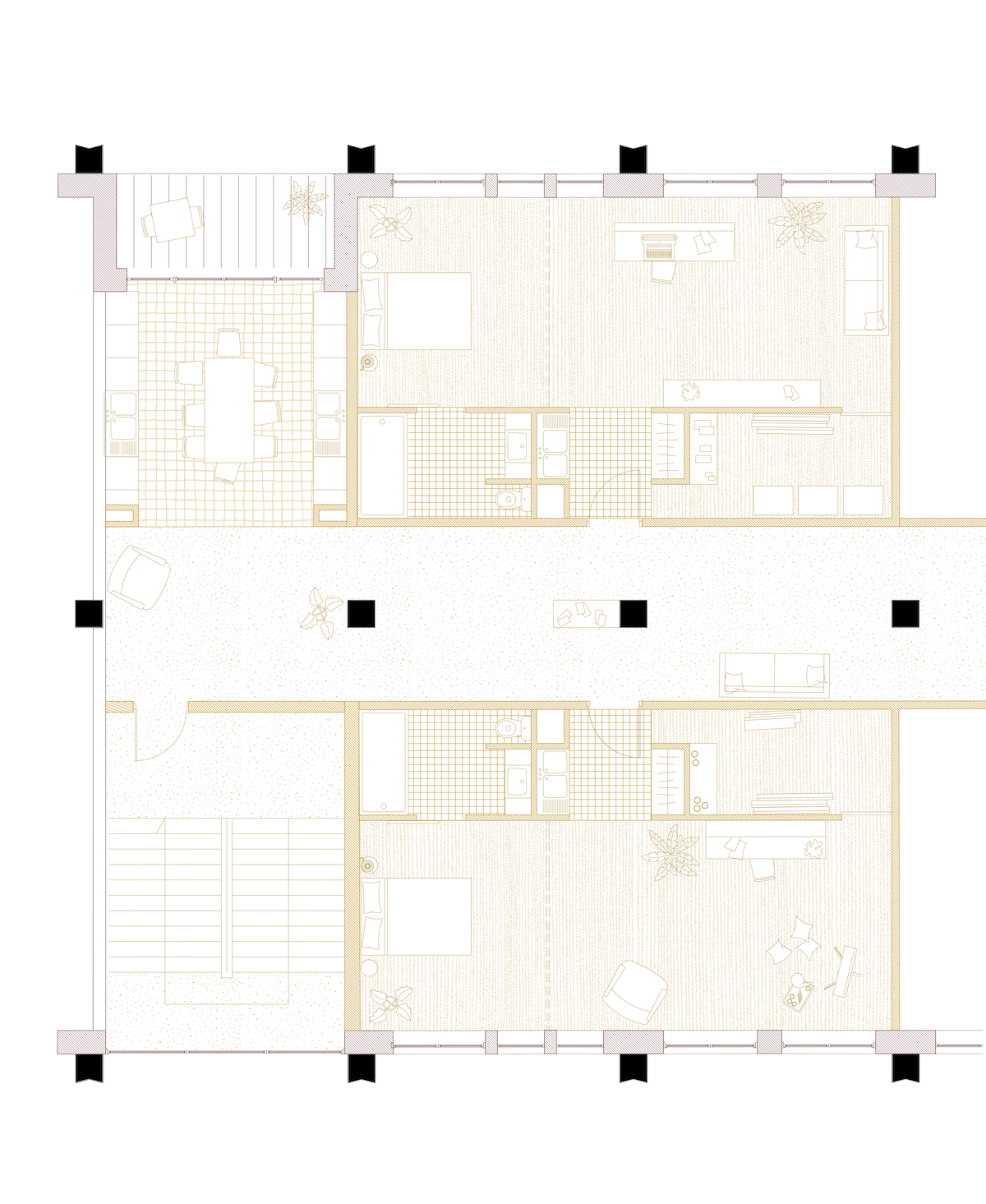
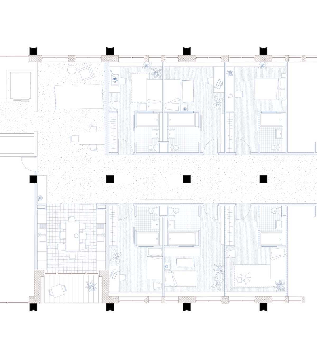
j'ai de nouveau choisi un projet de réhabilitation à mon retour d'erasmus. par groupe de 4 étudiant·es en master et 4 étudiant·es en licence 3, nous devions transformer des bâtiments industriels le long du canal Saint-Denis ou du canal de l'Ourcq. il était aussi question d'intégrer une démarche de réemploi dans notre projet.
nous avons alors décidé d'une implantation en peigne pour les barres de logements le long de la halle métallique. ces barres s'organisent par deux pour créer un patio privatif ; les logements étaient d'ailleurs dessinés par les étudiant·es en licence. cette implantation nous a permis de reconnecter la halle avec le boulevard macdonald en y aménageant deux entrées. nous avons aussi aménagé les différents abords du bâtiment en imaginant une forêt sacralisée le long du périphérique, en dessinant une entrée progressive côté porte de la villette avec un jardin intérieur et en nivelant la place devant la halle côté canal.

vue aérienne coupe perspective élévation côté canal coupe longitudinale red détail isolation de l'existant

le PFE !! ce dernier semestre, en binôme, était l'occasion de suivre la mention recherche et ainsi de faire dialoguer nos deux mémoires. nous avons donc décidé de travailler sur le quartier d'orléans-la source, visé par l'anru, et plus particulièrement de faire un projet sur le bâtiment des chèques postaux. l'idée était d'intégrer la parole des habitant·es dans le processus du projet, nous avons donc mené plusieurs ateliers participatifs : l'atelier post(e)-scriptum sur la mémoire du bâtiment avec des ancien·es employé·es de la poste, l'atelier carte sourcienne avec des enfants pour dessiner leur quartier, et trois jours d'exposition mobile pour imaginer le programme et déconstruire les idées reçues sur la réhabilitation.
notre projet s'est donc basé sur le concept de réversibilité pour imaginer des façades isolées, distribuer de nouveaux réseaux et répondre aux règlementation incendie d'un IGH. le programme intégré dans ce bâtiment réversible et à la gouvernance partagée comprenait alors un restaurant, un café et des locaux associatifs au rez-de-chaussée, et des ateliers d'artistes et des logements étudiants dans les étages.

carte d'analyse axonométrie du projet atelier post(e)-scriptum atelier carte sourcienne exposition mobile schéma de réversibilité plan habité ateliers d'artistes plan habité logements étudiants perspective depuis le parking coupe détail